A digital cemetery management system supports you in the efficient maintenance and planning of your graveyard. We offer a smart, intelligent solution which will give you access to complete and up-to-date information about the cemetery area and its graves. This will give you a consistent overview of the graveyard area, enabling transparent costing, needs oriented development planning and good management of graveyard operations.
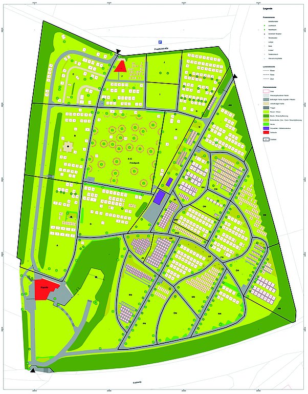
Many cemetery administrators are in the process of transferring their paper-based data collections to digital systems. This allows a wide range of information to be captured, maintained and interrelated in relevant, logical ways. Our data sets are customarily mapped on the basis of aerial imagery, and delineate precise details of point, line and area elements, as for example in the case of trees, graves, and fences.
Aerial captured data, is checked and compared on-site at the cemetery, and then if necessary supplemented. Field check results are added to the mapped information and then integrated into the geo-information system allowing the data to be processed by established cemetery management programs. This means you will have at your disposal all resources required to efficiently administer your cemetery.
In addition to data capture and processing we offer a wide spectrum of other services. We can assist in planning for sustainable development through the drafting up of new concepts for the further development of your cemetery. Our consultancy services will assist you in planning a future-oriented, needs based concept for graveyard improvement.
The administration of a cemetery encompasses factors such as cost-effective, well-conceived planning, upkeep and maintenance, and calculation of burial plot costs. We can calculate areas and their usages within your cemetery, develop maintenance and upkeep concepts. In addition, we can optimise your tender and billing systems, calculate the fees for grave sites and manage invitations to tender for landscape gardening services.
Your advantages and our services
- A more efficient and better overview of the graveyard with a digitalised management system and an up-to-date, unified information base
- Confident, secure planning on the basis of a future-oriented cemetery development planning
- A more attractive cemetery area through well-conceived planning of layout and upkeep
- Increased cost-effectiveness through optimised tender and billing systems
- Service fees calculated on the basis of services rendered and increased cost transparency
Related Services

Aerial Surveys & Orthophotos
The basis for every GIS, for digital surface models, for every cadastre, for every query.

Tree Register
Legal and traffic security: Tree registers since 1976; mobile software solution

Cadastre Management
Whether opening balance or continuation: Specialized cadastres for road and green provide data on condition and state.




